
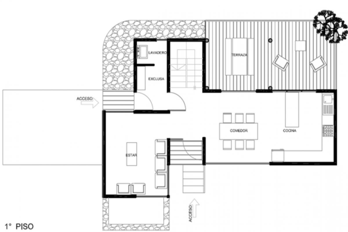
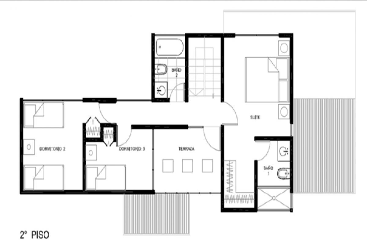
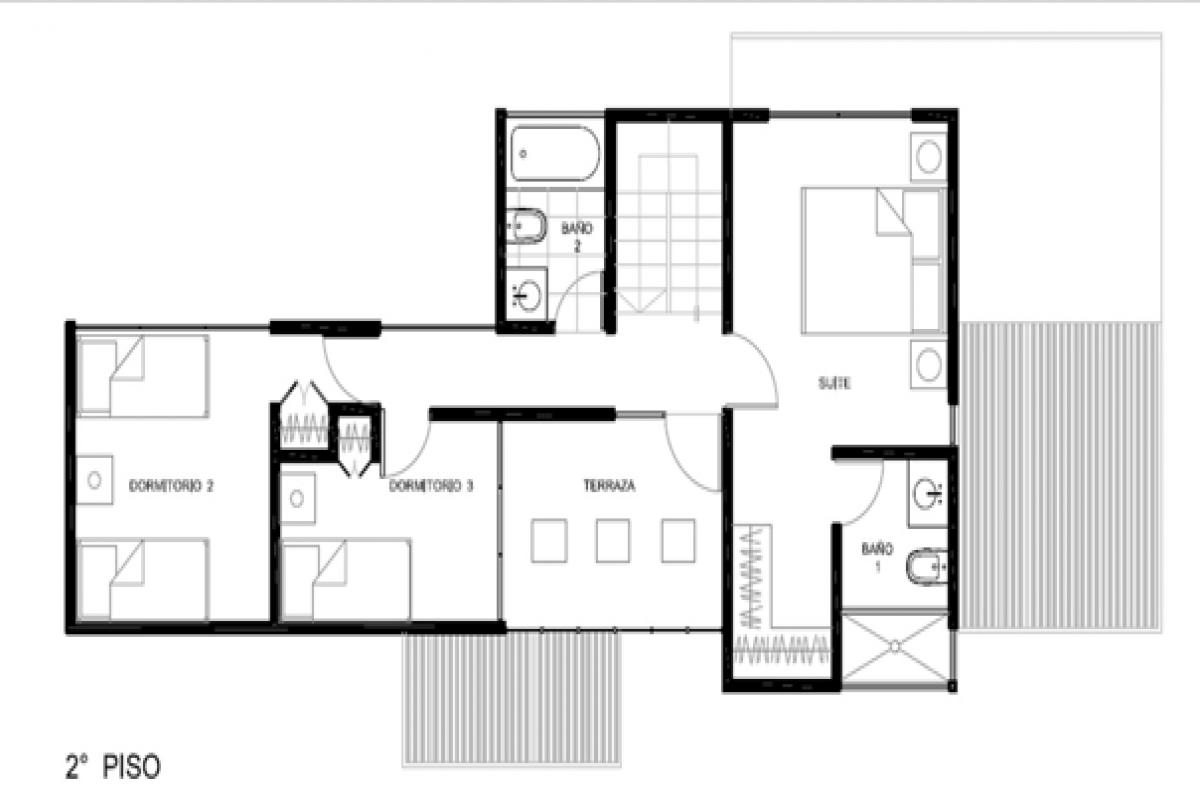
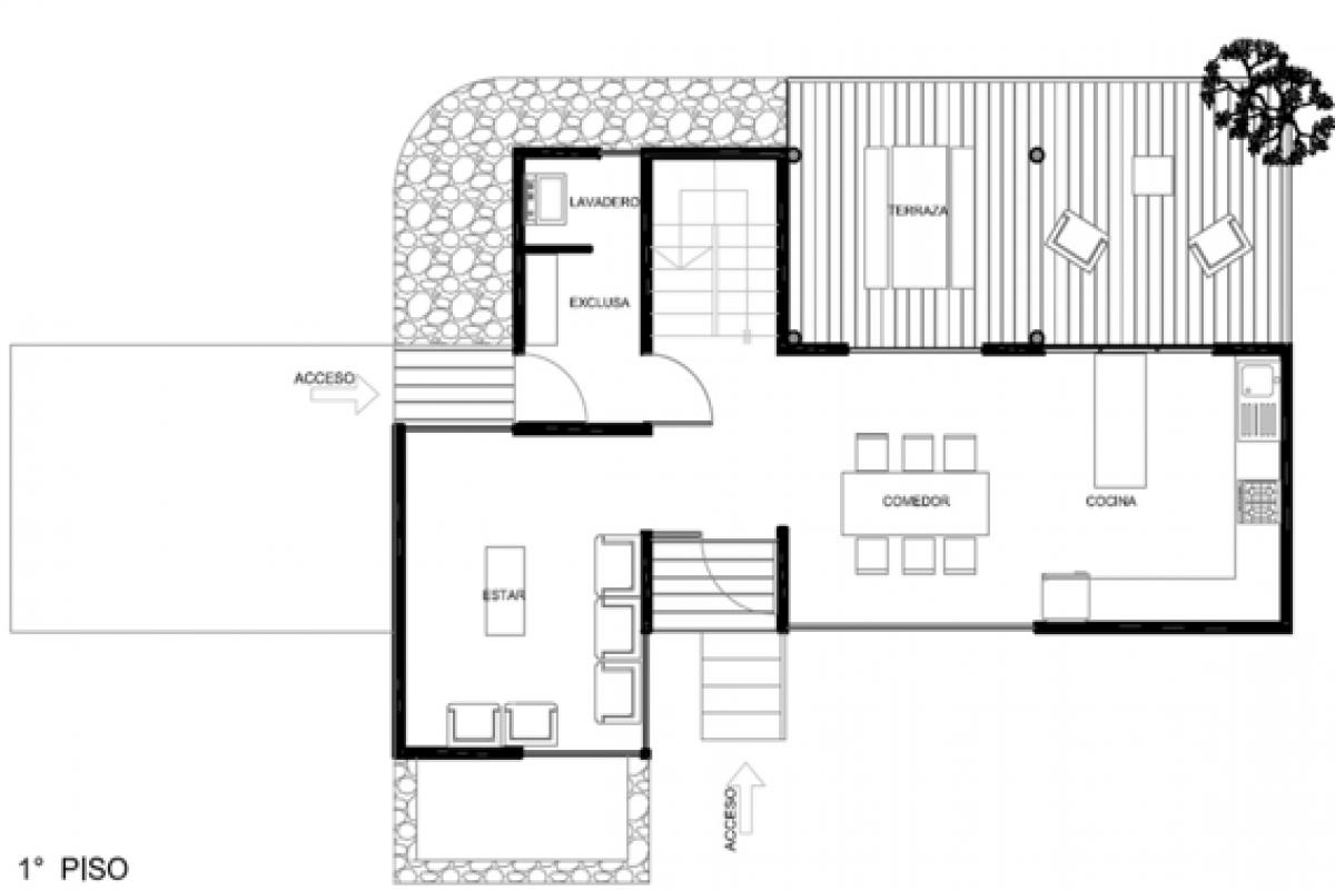
El Bosque las Trancas se encuentra emplazado en un hermoso condominio privado y exclusivo. Proyecto de sólo cuatro refugios de montaña totalmente amobladas, estilo contemporáneo, cada una de ellas son modelos únicos. Modelo Hualle (entrega inmediata) Modelo Ñirre y Modelo Rocanegra (venta en verde) Destacamos su alta calidad constructiva, excelente vista y orientación solar. Quienes han visitado Valle Las Trancas, lo definen como un poblado cordillerano y montaña de características originales donde sobresalen parajes únicos, ríos, senderos, sol en verano y nieve en invierno, una exuberante flora y fauna nativa, un ambiente cálido y acogedor. Está ubicado a 10 minutos de Nevados de Chillán, lo que permite a los turistas chilenos y extranjeros subir por el día a disfrutar de los atractivos del lugar. Ideal para personas que disfrutan de la vida natural, del aire puro y tranquilidad de la montaña. Desde UF:2.950.-
Ubicación: chillán las trancas, Chillán
Ver Ubicación en mapa