
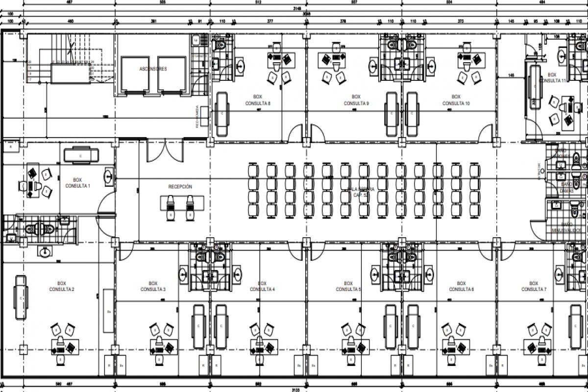
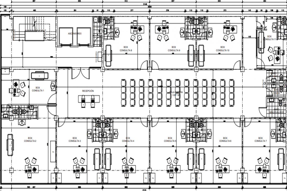
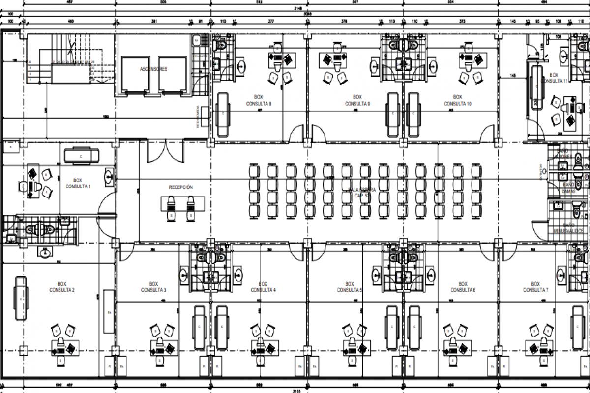
Edificio de oficinas con la más alta calidad constructiva. A sólo pasos de la plaza de armas, centros comerciales, colegios y bancos. Aspectos Generales de venta: 2° piso 11 oficinas tipo Box, sala de espera. 450 m2 y estacionamiento de 600 m2. Recomendada para profesionales del área de salud. Ideal para inversionistas que quieran una alternativa de compra, potenciales arriendos.
Ubicación: Villota 505, Curicó
Ver Ubicación en mapa